Prinzip Wohnwagen: Umbau Dachgeschoss zu modernem Studio
Renovierung oder Leerstand? Hohe Heizkosten führten zu einer unwirtschaftlichen Vermietung der Dachgeschosswohnung. Die Ausstattung war nicht mehr zeitgemäß. Doch selbst ein 30°-Dach macht hochwertigen Wohnraum möglich. Wenn man weiß, wie!
-
Flach geneigte Dächer benötigen besonders lange Fenster. So erhält man genügend Kopffreiheit und Brüstungshöhen, über die man blicken kann. -
Ein Teil des Flures dient gleichzeitig als Küche. Auf diese Weise wird der kostbare Raum mit ausreichender Deckenhöhe doppelt genutzt. -
Ein offener Grundriss mit Blickachsen vergrößert den Raum optisch und streckt ihn in der Breite. -
Unter den Dachschrägen befindet sich ohnehin viel nutzbarer Raum. Mit der Dachterrasse erhält man zudem eine weitere Wand mit vertikalen Fensern. -
Das Herz der Wohnung: der Koch-Essbereich. -
Ein weiteres bodentiefes Fenster an der Giebelseite. Ein Glasseitenteil, ein Oberlicht und eine Schiebetür strecken den Wohnraum über die Breite des Hauses. -
Die Öffnung des Daches über die Dachflächen sorgt für eine ganztägige Durchsonnung und interessante Blickbeziehungen. -
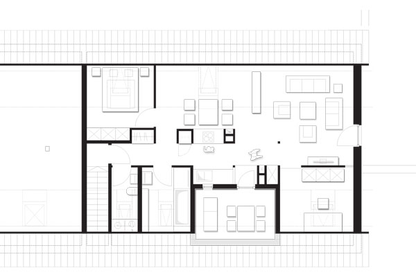
Grundriss der Dachgeschosswohnung -
Ein Einbauschrank neben dem Schornstein bringt Stauraum bei begrenzen Platzverhältnissen.
Projektnachweis
Architekt: Stefan Unnewehr, Telgte Bauherr: privat Laufzeit: 2012 Fotografien: Stefan Unnewehr
